Margaret Esherick House : A 3d massing model helps to learn a building's architecture and environment.

Margaret Esherick House : A 3d massing model helps to learn a building's architecture and environment.. Commissioned by margaret esherick, it was completed in 1961. A recent renovation and gracious new owners have once again made it a welcome destination. In this project, i decided to create 3d model of the esherick house.esherick house was designed by louis i. Instead of backyard neighbors, the site abuts onto pastorius park. Louis kahn designed the house at 204 sunrise lane between 1959 and 1961.

Kahn designed the house at the exact moment his career began. Text description provided by the architects. The jury commented, a rare residence by the master architect louis i. Introduction esherick house is one of the first residential designs constructed by kahn after his return to the united states from rome, having been appointed there member of the american academy in 1953, illustrating his formal ideology. Vanna venturi house is situated 790 feet southwest of margaret esherick house.

Margaret Esherick House Eyad Kalaji
Margaret Esherick House Eyad Kalaji from images.squarespace-cdn.com
Kahn, this house has been restored by owners who painstakingly sought to have the genius of kahn shape their approach to the restoration. The client, margaret esherick, was a bookshop owner, the niece of famed sculptor and furniture maker wharton esherick, for whom kahn had designed a studio/workshop in 1956. The jury awards a citation of merit for the conservation of louis i. Designed and constructed between 1959 and 1962, the margaret esherick house in chestnut hill, pennsylvania is a masterwork of modern architecture and craftsmanship. But what i liked the most was how the natural light came into all the rooms. When not in use, the tub turns into a daybed by. Designed by luis khan, the house is noted especially for its spatial organization and for the ventilation and natural lighting provided by its unusual window and shutter configu…. Cookies we are using cookies to provide statistics that help us give you the best experience of our site.

1 lounge chair from the winn condominium kalamazoo michigan.

Designed by luis khan, the house is noted especially for its spatial organization and for the ventilation and natural lighting provided by its unusual window and shutter configu…. Introduction esherick house is one of the first residential designs constructed by kahn after his return to the united states from rome, having been appointed there member of the american academy in 1953, illustrating his formal ideology. The margaret esherick house was built by an american master, and its splendor cannot be understated. Schnell und sicher online buchen Commissioned by margaret esherick, it was completed in 1961. Kahn, this house has been restored by owners who painstakingly sought to have the genius of kahn shape their approach to the restoration. The vanna venturi house, one of the first prominent works of the postmodern architecture movement, is located in the neighborhood of chestnut hill in philadelphia, pennsylvania. An architect celebrated for his breathtaking studies of light and materiality in the. He divided the house into served and servant spaces. The kitchen wharton designed for his niece, margaret esherick, as restored in 2015. 1 lounge chair from the winn condominium kalamazoo michigan. Designed and constructed between 1959 and 1962, the margaret esherick house in chestnut hill, pennsylvania is a masterwork of modern architecture and craftsmanship. The house is noted especially for its spatial organization and for the ventilation and natural lighting provided by its unusual window and.

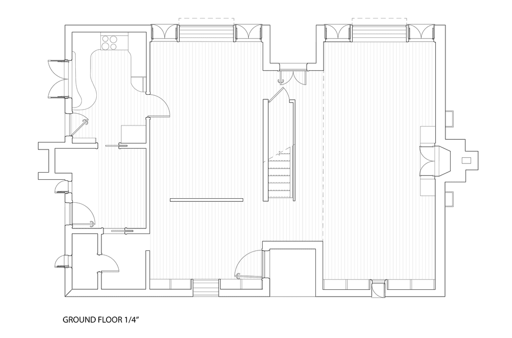
Louis kahn designed the house at 204 sunrise lane between 1959 and 1961. Concept the house has a simple design with a … The house is noted especially for its spatial organization and for the ventilation and natural lighting provided by its unusual window and. The house is noted especially for its spatial organization and for the ventilation and natural lighting provided by its unusual window and shutter configuration. Introduction esherick house is one of the first residential designs constructed by kahn after his return to the united states from rome, having been appointed there member of the american academy in 1953, illustrating his formal ideology.

A Study In Modern Stewardship Louis Kahn S Esherick House For Sale
A Study In Modern Stewardship Louis Kahn S Esherick House For Sale from hiddencityphila.org
It's also only one of two of kahn's houses to have historic. The house is noted especially for its spatial organization and for the ventilation and natural lighting provided by its unusual window and. Designed and constructed between 1959 and 1962, the margaret esherick house in chestnut hill, pennsylvania is a masterwork of modern architecture and craftsmanship. Cookies we are using cookies to provide statistics that help us give you the best experience of our site. Internationally renowned philadelphia architect louis i. In this project, i decided to create 3d model of the esherick house.esherick house was designed by louis i. The jury awards a citation of merit for the conservation of louis i. Robert and lynn gallagher purchased the esherick house from.

In the bedroom, kahn placed the bathtub next to a fireplace.

The house is noted especially for its spatial organization and for the ventilation and natural lighting provided by its unusual window and. Schnell und sicher online buchen The client, margaret esherick, was a bookshop owner, the niece of famed sculptor and furniture maker wharton esherick, for whom kahn had designed a studio/workshop in 1956. Take a tour of the louis kahn designed maragret esherick house in chestnut hill pennsylvania. Kahn and esherick had previously collaborated on the studio for wharton in. The esherick house in philadelphia, pennsylvania, is one of the most studied of the nine built houses designed by american architect louis kahn. Introduction esherick house is one of the first residential designs constructed by kahn after his return to the united states from rome, having been appointed there member of the american academy in 1953, illustrating his formal ideology. Concept the house has a simple design with a … In the bedroom, kahn placed the bathtub next to a fireplace. The house features a complete, one of a kind, custom kitchen by. But its status as an important destination for architecture buffs has waxed and waned through the decades. Kahn designed the house at the exact moment his career began climbing to unprecedented heights of success. The esherick house in philadelphia, is one of the most studied of the nine built houses designed by american architect louis kahn.commissioned by margaret esherick, it was completed in 1961.

A recent renovation and gracious new owners have once again made it a welcome destination. Margaret esherick house designed by louis kahn (photo courtesy craig wakefield). The jury commented, a rare residence by the master architect louis i. Khan, a famous american architect, and demonstrates the use of space and light for an individual house.i modelled this house using archicad 15 (student edition). He divided the house into served and servant spaces.

K Yoder Design Margaret Esherick House
K Yoder Design Margaret Esherick House from kyoderdesign.com
In this project, i decided to create 3d model of the esherick house.esherick house was designed by louis i. Margaret house in margaret river reservieren. Esherick house / louis kahn. Commissioned by margaret esherick, it was completed in 1961. The jury awards a citation of merit for the conservation of louis i. Internationally renowned philadelphia architect louis i. Designed and constructed between 1959 and 1962, the margaret esherick house in chestnut hill, pennsylvania is a masterwork of modern architecture and craftsmanship. The house features a complete, one of a kind, custom kitchen by.

Designed and constructed between 1959 and 1962, the margaret esherick house in chestnut hill, pennsylvania is a masterwork of modern architecture and craftsmanship.

The client, margaret esherick, was a bookshop owner, the niece of famed sculptor and furniture maker wharton esherick, for whom kahn had designed a studio/workshop in 1956. The house stands as one of the most important houses realised by kahn throughout his luminous career, and is the first residence to illustrate his mature architectural ideals. The project was commissioned by margaret esherick, single woman. In the bedroom, kahn placed the bathtub next to a fireplace. Environment location weather solar analysis wind landscape the landscaping of the trees has changes many times over the years, but the brickwork at the back has not. The esherick house in philadelphia, pennsylvania, is one of the most studied of the nine built houses designed by american architect louis kahn. The vanna venturi house, one of the first prominent works of the postmodern architecture movement, is located in the neighborhood of chestnut hill in philadelphia, pennsylvania. Situated in the greenery of chestnut hill pa the margaret escherick house one of kahn s smallest commissions. The margaret esherick house was built by an american master, and its splendor cannot be understated. He divided the house into served and servant spaces. The house features a complete, one of a kind, custom kitchen by. Margaret esherick wanted kahn to design multiple reading nooks throughout the house. Sci_arc part of a design studio / fall 13' instructor :

Posting Komentar

0 Komentar

Ad Code